Elytron e+u

Ελληνικά English

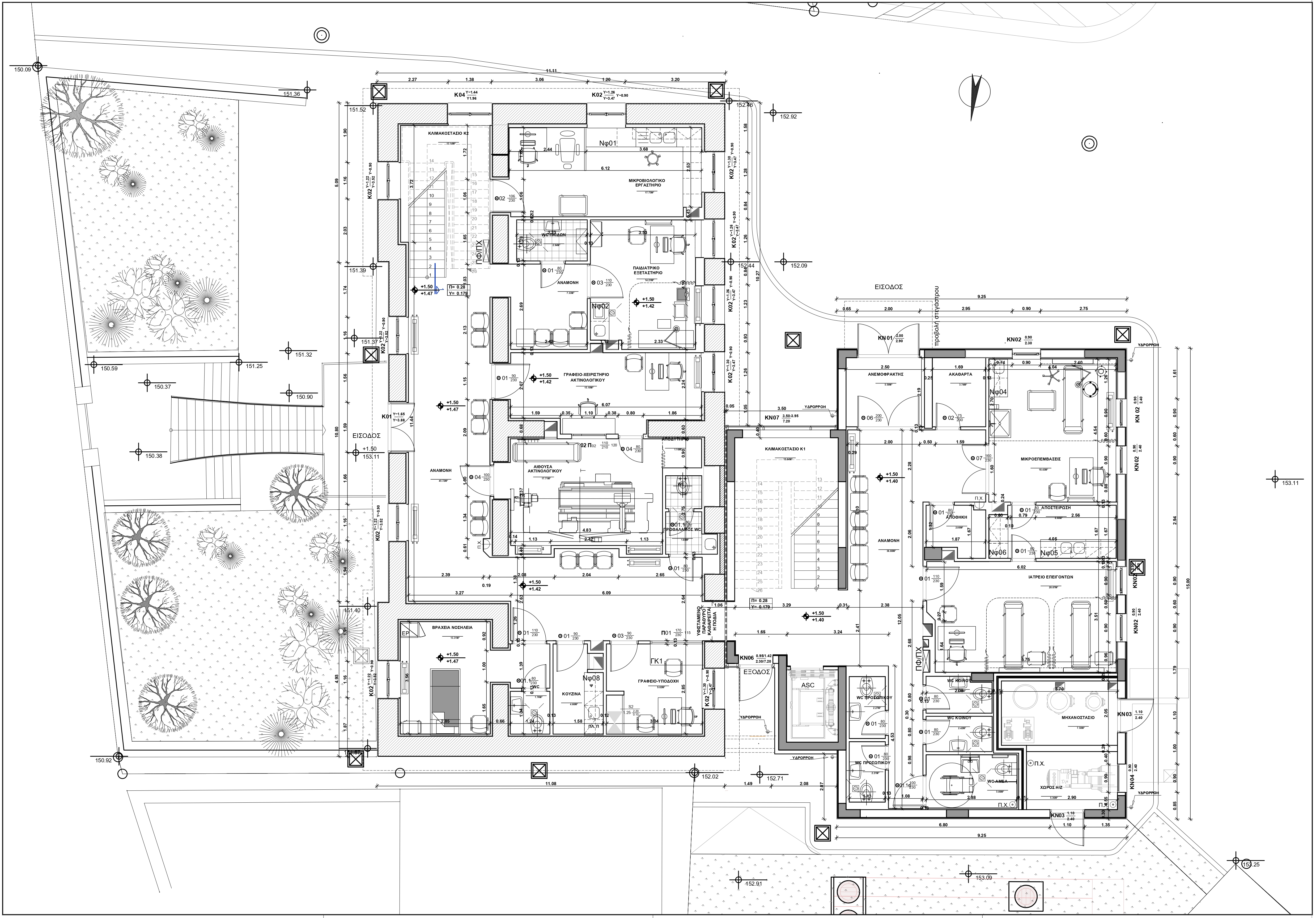
Κέντρο Υγείας στο Μανταμάδο Λέσβου


H μελέτη αφορά στην πλήρη αποκατάσταση του διατηρητέου κτιρίου, του Παρθεναγωγείου και την προσθήκη νέου κτιρίου για την στέγαση των υπηρεσιών του Κέντρου Υγείας Μανταμάδου. Στόχος είναι ο σχεδιασμός και η κατασκευή ενός λειτουργικού Κέντρου Υγείας με σεβασμό τόσο στην Αρχιτεκτονική του υφιστάμενου διατηρητέου κτιρίου όσο και της αρχιτεκτονικής του οικισμού. Για την προσθήκη θα χρησιμοποιηθούν σύγχρονα υλικά , προκειμένου να διαφοροποιηθεί πλήρως μορφολογικά και αισθητικά από το διατηρητέο κτίριο. Client : 2ND D.Y.P.E. OF PEIRAUS & AEGEAN ISLANDS Initial Architectural study : BETAPLAN Structural study: G. Diamantaras M.E.P. study : S. Vavaliaros

Φωτογραφίες

ΚΤΙΡΙΑ ΥΓΕΙΑΣ

Άλλα έργα